








Great investment opportunity with a mixture of units to be sold in 1 line.
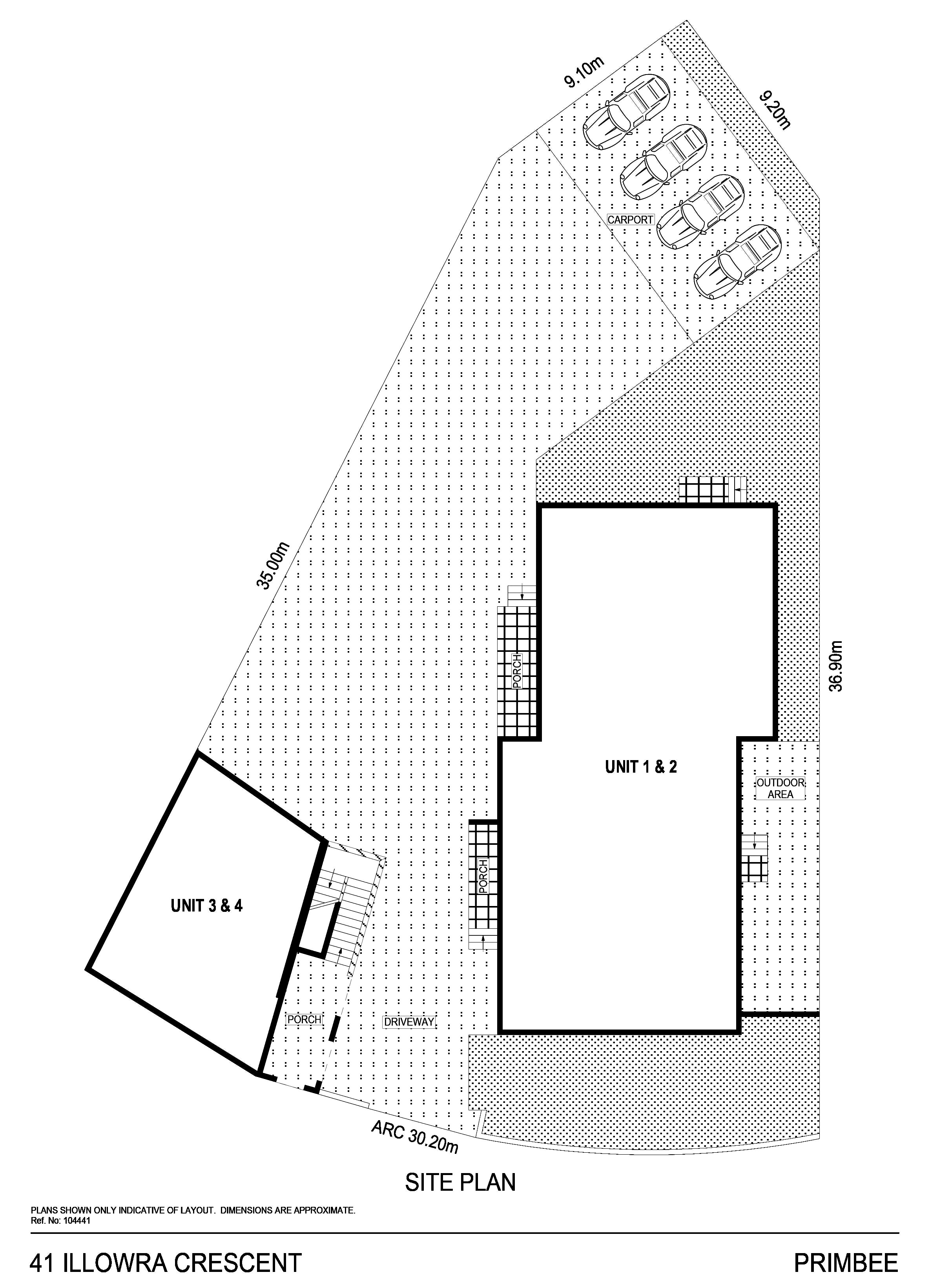
Consisting of two stand-alone buildings currently configured and let as 2 x 2 bedroom units (building 1) and 1 x 3 bedroom villa + 1 x 2 bedroom villa (building 2) - all with parking and long-term tenant history
All units are on the same title, with the combined rental return of the 4 tenancies presently $1325 per week. ($68,900 PA)
Positioned in a nice, quiet, friendly neighbourhood and only moments to Lake Illawarra, Warrawong shopping district and amenities.
This property is perfect for the first-time investor or the astute property investor looking to add to their portfolio. These set and forget properties don't come along that often, so be quick to get in to inspect.
From all of us at Fitzgerald Hines, we wish you every success in your search for your home. If you would like more details on this home or to discuss one of the many other properties we have available please call or email us today.
Disclaimer: All information provided in this listing is from sources we believe to be correct at time of publication, however, we cannot guarantee, and do not warrant its accuracy. Prospective purchasers are advised to carry out their own enquiries to satisfy themselves of all aspects of the property and this listing, including but not limited to : current and future rental income, terms of tenancies, dimensions, areas, council zoning & permitted use, inclusions and exclusions.
Shop 1 / 313-323 Crown Street Wollongong NSW 2500