










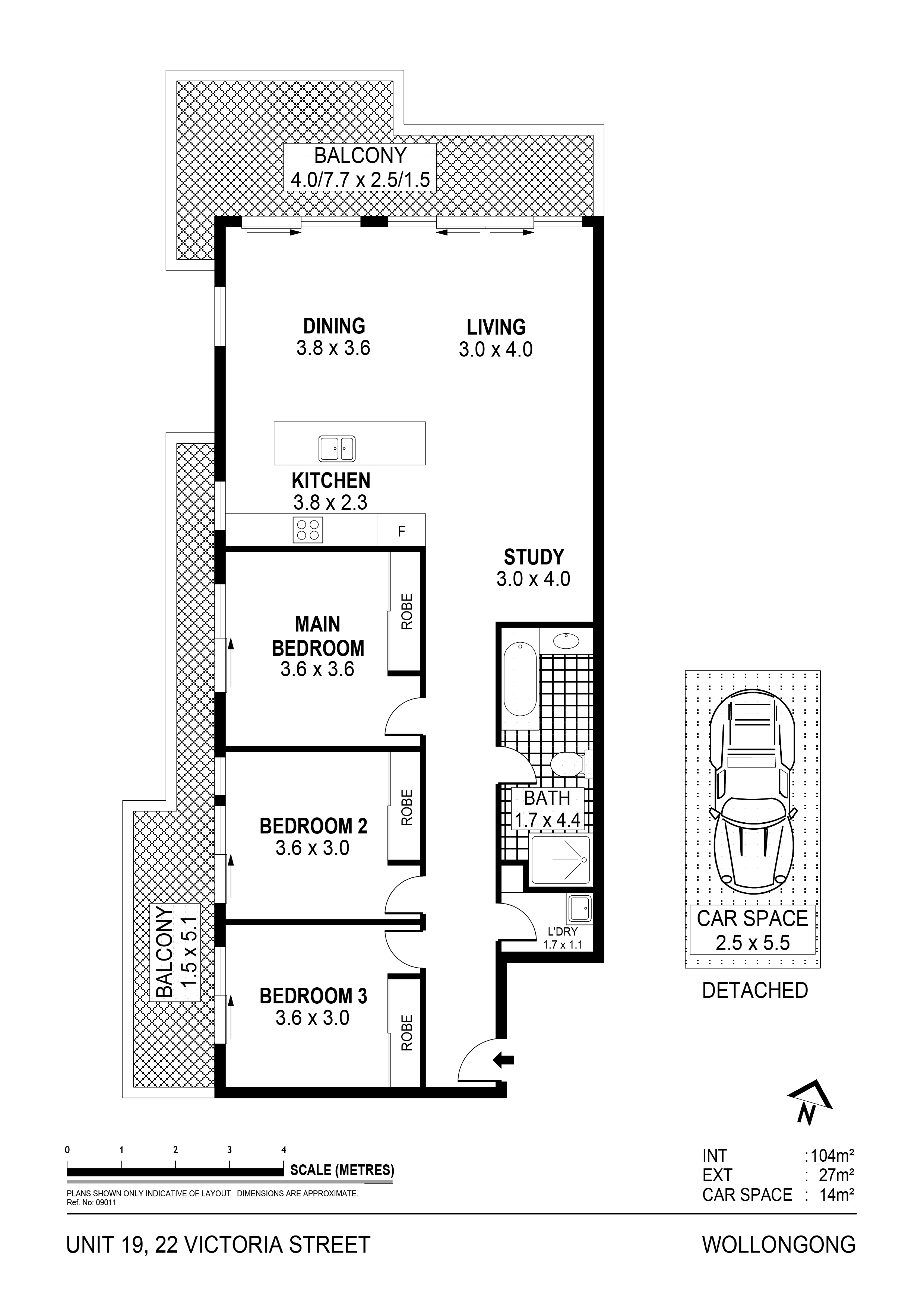
Welcome to 19/22 Victoria Street, Wollongong — a contemporary 3-bedroom apartment offering the perfect blend of style, comfort, and convenience in one of the city’s most vibrant and sought-after locations.
Upon entry, a private hallway sets the tone, opening into a bright and spacious living area designed for modern living. The open-plan layout seamlessly connects the lounge, dining space, and well-appointed kitchen, creating an inviting environment ideal for both everyday living and entertaining friends and family.
Bathed in natural light, the north-facing balcony extends your living space outdoors — the perfect spot to enjoy morning sunshine, relax with a coffee, or unwind after a long day.
Positioned in a prime lifestyle location, this apartment is just moments from Wollongong’s buzzing cafés, restaurants, shops, parks, and recreational facilities. Public transport is within easy reach, ensuring effortless access to the CBD and surrounding suburbs.
Property highlights:
• 3 spacious bedrooms
• 1 modern bathroom
• North-facing balcony
• Security car space
• Lift access
• Contemporary open-plan living
Perfect for homeowners and investors alike, this standout residence offers the ultimate low-maintenance urban lifestyle in a highly desirable address.
For more details and an inspection contact Jason Hines 0412939710
From all of us at Fitzgerald Hines, we wish you every success in your search for your home. If you would like more details on this home or to discuss one of the many other properties we have available please call or email us today.
Disclaimer: We have obtained all information provided here from sources we believe to be reliable; however, we cannot guarantee its accuracy. Prospective purchasers are advised to carry out their own investigations and satisfy themselves of all aspects of such information including and without limitation, any income, rentals, dimensions, areas, zoning, inclusions and exclusions.
Shop 1 / 313-323 Crown Street Wollongong NSW 2500